学生中心
学生中心

和融—优山美地名邸住宅空间设计

                 设计者:潘国庆

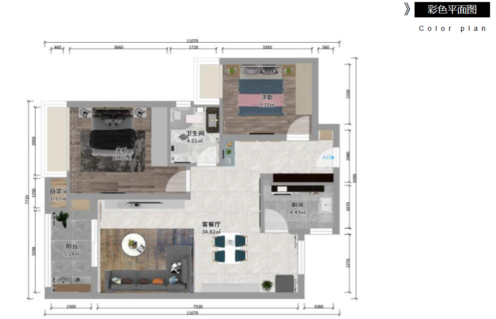
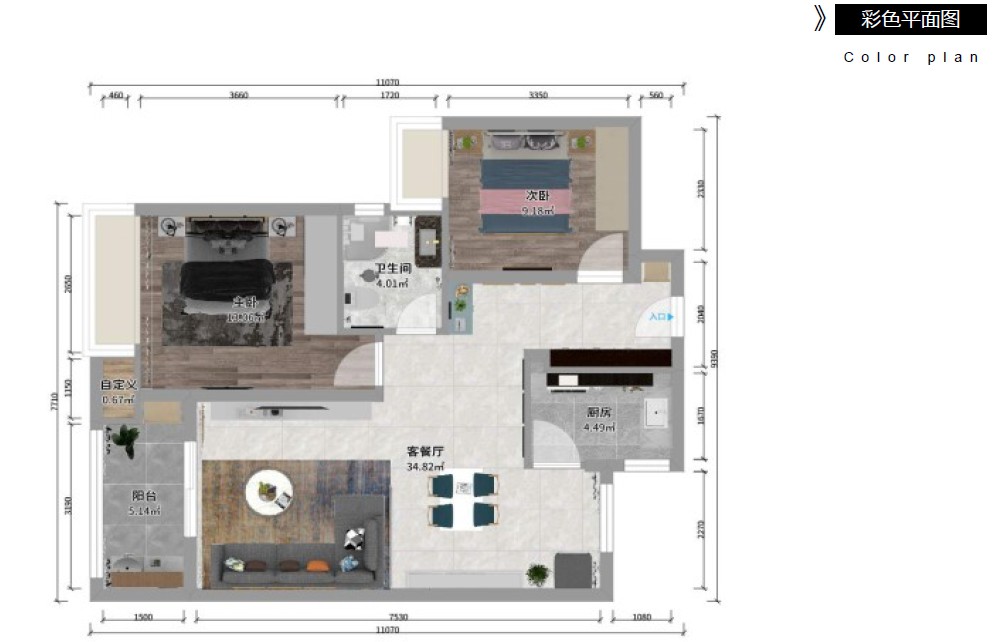
    本住宅空间设计方案采用南通市优山美地小区的实际案例项目作为毕业设计的选题,本次的主题为“和融—优山美地住宅空间设计”,课题研究方向为室内住宅空间室内设计。本方案户型为三室两厅一厨两卫的平层户型,总建筑面积约为99平方米,实际使用面积约为90平方米;虚拟业主为一对青年夫妇,有一个孩子,家庭收入稳定,根据业主的具体设计要求以及前期的调研,本设计采用了简约风格。希望能够通过设计探讨如何创造一个简约时尚的家具空间,给业主提供一个轻松、愉悦、舒适的家居空间。简约设计源于20世纪初的西方现代主义,简约风格在空间装饰上、设计表现手法上,都是一种新的生活方式的一种尝试,让人们重新定义当今居住空间的新概念。当代人生活节奏快,对空间的居住需求不再是繁华的奢侈,更多的是现代自然的的轻松。本设计通过整体空间的色彩、和软装搭配,为业主创造一个“纯净”的精神空间,空间色彩处理上,在客厅空间通过大面积的灰百色调营造一种高级灰色的空间处理效果,在电视背景墙采用通体大理石。

    本设计依据虚拟业主确定的主题风格展开设计。将空间二室一厅跟据要求,分别设立主卧、次卧,阳台、客厅、餐厅、一厨一卫等功能空间。

    客厅使用白灰色作为点缀。卧室空间采用暖色调。在设计制作表现上前期平面布置图施工图采用AutoCAD软件进行表现,后期效果图制作使用了酷家乐设计软件进行各空间的电脑效果图表现制作,并通过酷家乐软件制作了360全屋智能漫游设计表现。


地址:江苏省太仓市科教新城健雄路1号 邮编:215411

电话:0512―53940888

×